1718-Flatiron-EgressStair-01
1718-Flatiron-EgressStair-02
1718-Flatiron-EgressStair-03
1718-Flatiron-EgressStair-03

Madison Square Cantilever

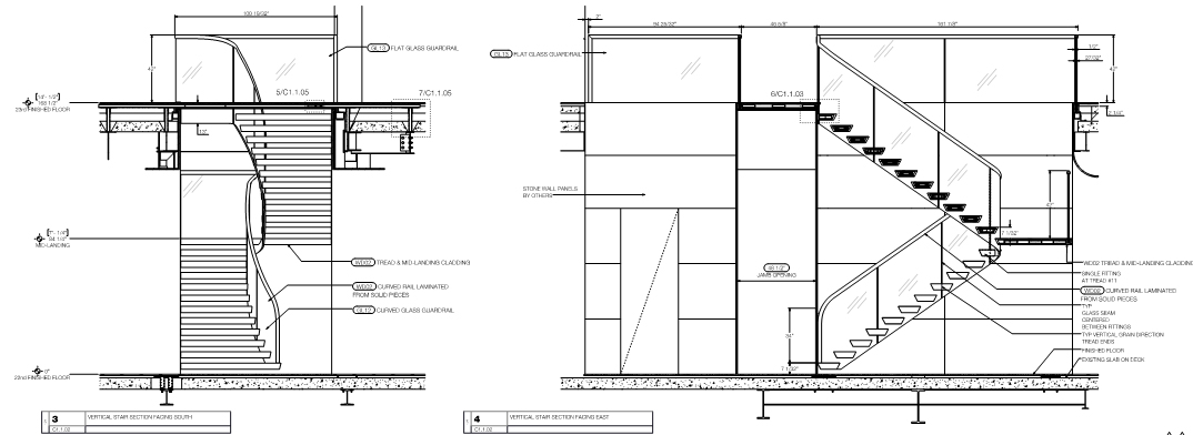
Cantilever stair with glass guardrail ribbon that follows the edge of the treads from a gentle curve to a tight radius at the switchback.

Architect: Thomas Juul-Hansen
Contractor: S. Donadic Construction Management